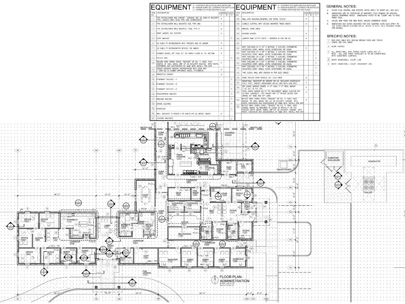
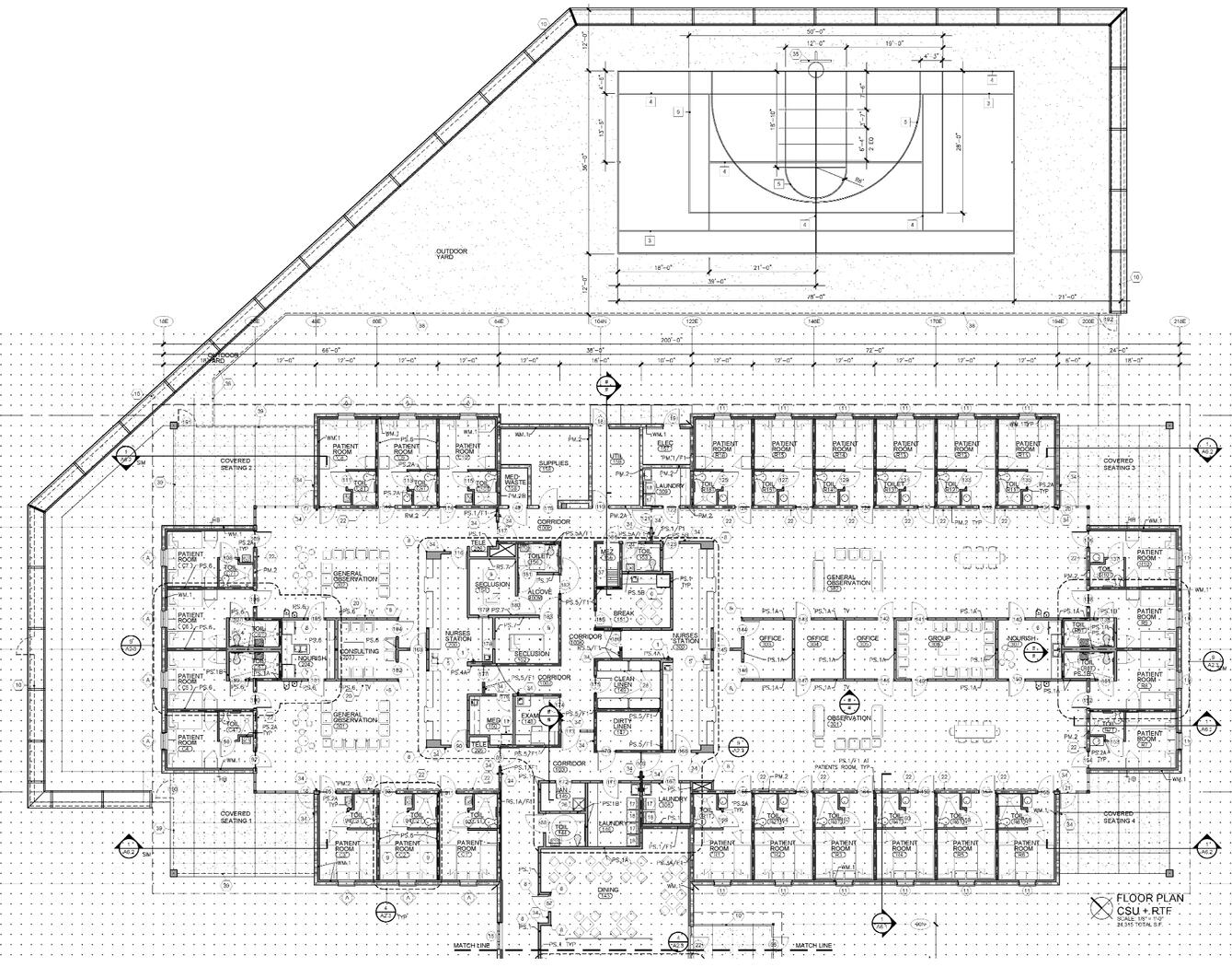
LifeStream
Behavioral Center 20 Bed CSU + 32 Bed RTF
Clermont, Florida
LifeStream's growth continued on the South Lake Campus with the addition of a 52 bed facility adjacent to their outpatient facility. The strictly limited budget for the project did not account for the use of chilled water for the HVAC system since RTU's were not an option on this site. At the start of the design process, recent catastrophic events in Florida caused by extended hurricane-driven power outages resulted in LifeStream's appropriate decision to install a generator powerful enough to allow the facility to function in the event of a power outage. LifeStream placed the safety of its future clients above short-term cost savings.
The result of this decision was a much safer and more energy-efficient facility, and the value of these systems will be recognized in time. The design maintains LifeStream's standard of using an abundance of natural light and volume in the residential common areas.












